物件番号:2668 物件詳細


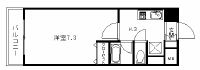
間取1
写真1

★★★物件情報★★★
地区1:南区
住所:広島市南区宇品御幸4丁目
最寄駅:宇品5丁目電停 徒歩2分
タイプ:マンション
賃料:\52,000
共益費:-
礼金:1ヶ月
敷金:3ヶ月
保証金:
敷引:
仲介手数料:1ヶ月
駐車場料金:
火災保険:\15,000/2年
入居時期:リフォーム中
向き:西
間取:1K
間取詳細:洋7.3、K3
面積:22.95平米 ( 6.94坪 )
構造:鉄筋コンクリート造
築年月:平成21年1月 ( 築7年 )
階/階建:4階/4階建
総戸数:
諸費用:
取引態様:仲介
保証会社利用:可
確認日:2016/05/30
次回確認予定日:2016/06/27
特色:バストイレ別、オートロック、IHクッキングヒーター、エアコン、モニター付インターホン、CATV、室内洗濯機置場、ウォームレット、収納、洋室、バルコニー、下駄箱、ゴミ代4,800円/年、駐輪場、バイク置場(500円/月)



★★★会社情報★★★
株式会社サンライフ・ホーム
メール問い合わせ(推奨)
上記リンクでうまく行かない場合は↓
メール問い合わせ
電話問い合わせ
FAX番号:082-236-8786

物件一覧へ戻る

H28年6月13日
10時34分 更新
次回更新予定日:平成28年6月14日