物件番号:2890 物件詳細


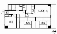
間取1
写真1
写真2

★★★物件情報★★★
地区1:南区
住所:広島市南区翠3丁目
バス停名:東翠町バス停 徒歩3分
タイプ:マンション
賃料:\90,000
共益費:
礼金:1ヶ月
敷金:3ヶ月
保証金:
敷引:
仲介手数料:1ヶ月
駐車場料金:\12,000
火災保険:要加入
入居時期:即時
向き:南
間取:3LDK
間取詳細:和6、和6、洋6、LDK11.5
面積:66平米 ( 19.96坪 )
構造:鉄筋コンクリート造
築年月:平成5年7月 ( 築22年 )
階/階建:5階/6階建
総戸数:
諸費用:
取引態様:仲介
確認日:2016/05/30
次回確認予定日:2016/06/27
特色:エレベータ、オートロック、室内洗濯機置場、独立洗面台、2口ガスコンロ可能、収納、バルコニー、インターホン、駐輪場



★★★会社情報★★★
株式会社サンライフ・ホーム
メール問い合わせ(推奨)
上記リンクでうまく行かない場合は↓
メール問い合わせ
電話問い合わせ
FAX番号:082-236-8786

物件一覧へ戻る

H28年6月13日
10時34分 更新
次回更新予定日:平成28年6月14日