物件番号:3359 物件詳細


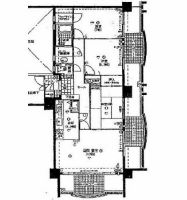
間取1
写真1

★★★物件情報★★★
地区1:中区
住所:広島市中区光南6丁目
最寄バス停:広島バス本社前バス停 徒歩2分
タイプ:マンション
賃料:\110,000
共益費:
礼金:1ヶ月
敷金:3ヶ月
保証金:
敷引:
仲介手数料:1ヶ月
駐車場料金:\10,000
火災保険:要加入
入居時期:即時
向き:南
間取:3LDK
間取詳細:LDK16.2、和6、洋7、洋6.2
面積:80.94平米 ( 24.48坪 )
構造:鉄骨鉄筋コンクリート造
築年月:平成3年12月 ( 築24年 )
階/階建:3階/14階建
総戸数:
諸費用:
取引態様:仲介
確認日:2016/05/30
次回確認予定日:2016/06/27
特色:分譲賃貸、エレベータ、オートロック、システムキッチン、追炊バス、ウォシュレット、シャンプードレッサー、浴室乾燥機、室内洗濯機置場、収納、照明器具、角部屋、洋室フローリング、二階以上、両面バルコニー、平面駐車場(\10,000)



★★★会社情報★★★
株式会社サンライフ・ホーム
メール問い合わせ(推奨)
上記リンクでうまく行かない場合は↓
メール問い合わせ
電話問い合わせ
FAX番号:082-236-8786

物件一覧へ戻る

H28年6月13日
10時34分 更新
次回更新予定日:平成28年6月14日