物件番号:3659 物件詳細


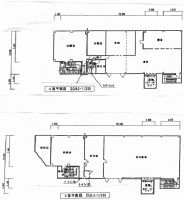
間取1
間取2
写真1
写真2
写真3
写真4

★★★物件情報★★★
地区1:南区
住所:広島市南区大州4丁目
最寄駅:JR天神川駅 徒歩8分
タイプ:店舗・事務所
賃料:\970,000
共益費:-
礼金:0ヶ月
敷金:8ヶ月
保証金:
敷引:
仲介手数料:1ヶ月
駐車場料金:-
火災保険:\40,000/2年
入居時期:即時
向き:南
間取:
間取詳細:
面積:1353平米 ( 409.28坪 )
構造:鉄骨造
築年月:昭和63年11月 ( 築27年 )
階/階建:--/4階建
総戸数:1戸
諸費用:
取引態様:仲介
確認日:2016/05/30
次回確認予定日:2016/06/27
特色:4階建ての一棟貸!事務所付工場!、エレベータ、エアコン、トイレ、シャワー、大州通り面し、広島高速2号大州入口近く、工業地域、看板効果あり



★★★会社情報★★★
株式会社サンライフ・ホーム
メール問い合わせ(推奨)
上記リンクでうまく行かない場合は↓
メール問い合わせ
電話問い合わせ
FAX番号:082-236-8786

物件一覧へ戻る

H28年6月13日
10時34分 更新
次回更新予定日:平成28年6月14日