物件番号:3678 物件詳細


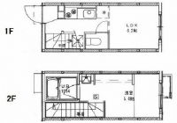
間取1
写真1

★★★物件情報★★★
地区1:南区
住所:広島市南区本浦町
最寄駅:JR向洋駅 徒歩25分
タイプ:アパート
賃料:\44,000
共益費:\4,000
礼金:1ヶ月
敷金:1ヶ月
保証金:
敷引:
仲介手数料:1ヶ月
駐車場料金:\8,000
火災保険:要加入
入居時期:即時
向き:南
間取:1LDK
間取詳細:(1F)LDK、(2F)洋5
面積:25.2平米 ( 7.62坪 )
構造:木造
築年月:平成26年12月 ( 築1年 )
階/階建:--/2階建
総戸数:14戸
諸費用:駐輪代 ¥1,000
取引態様:仲介
保証会社利用:必須 全保連
確認日:2016/05/30
次回確認予定日:2016/06/27
特色:メゾネットタイプの1LDK、バストイレ別、ガスキッチン、室内洗濯機置場、エアコン2基、収納、洋室、バルコニー、モニター付インターホン、光ファイバー対応インターネット使用料無料、下駄箱、角部屋、浴室乾燥機、追炊バス、床暖房、ベット付、二階以上、駐輪場



★★★会社情報★★★
株式会社サンライフ・ホーム
メール問い合わせ(推奨)
上記リンクでうまく行かない場合は↓
メール問い合わせ
電話問い合わせ
FAX番号:082-236-8786

物件一覧へ戻る

H28年6月13日
10時34分 更新
次回更新予定日:平成28年6月14日